Мени

Нов Стан 61м² – Карпош 4 (Нерези)

Нерези, Macedonia

1850€/ m2

Статус

За продажба

Тип

Стан

Референца

PRO22

прегледи

43

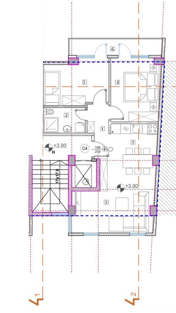
Бруто површина

61 m2

Бруто површина 61 m2

Спални соби 2

Бања 1

Дневна соба 1

Опис

🚨СЕ ПРОДАВА | НОВ СТАН 61.3м² – КАРПОШ 4 (ДОЛНО НЕРЕЗИ)🚨

👉🏼 Одлична Распределба · 2 Спални · Подземен Паркинг · Лифт 👈🏼

Опис:

Нов стан со површина од 61.3м², достапен на ката од 1 до 4.

Греењето е преку мулти сплит системи, има опција додека е во почетна фаза и со доплата да се спроведат и топлински пумпи.

Ориентација према Водно.

Функционален распоред со две спални соби, удобно дневно катче и балкон.

Проектираниот завршеток на изградбата е крајот на 2026 година.

Зградата располага со подземно паркинг место за секој стан, лифт, и современа ниско-катна структура со само 10 единици.

Цена:

1850 € / м² (со вклучен ДДВ)

Гаражните места се по цена од €9,000

* Без Агенциска Провизија *

Карактеристики и погодности:
dimoski-estate.plans
Plans